 |
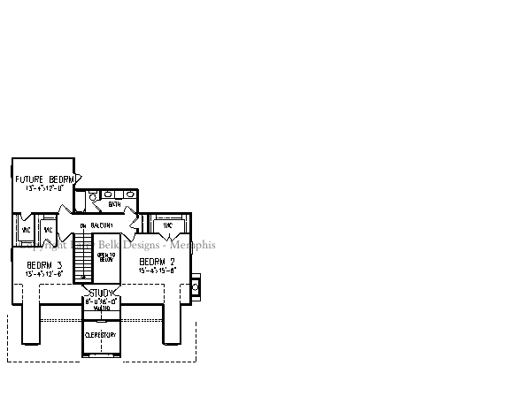
| Second Floorplan (Click image for printer-friendly) |


|
Total living: 2,887 sq.ft. |
Floors: 2 |
|
1st Floor: 1,993 sq.ft. |
Garage: 514 sq.ft. |
|
2nd: 894 sq.ft. |
Bonus: 176 sq.ft. |
|
3rd: N/A |
Basement: N/A |
|
Bedrooms: 3 |
Baths: 2 Full, 1 Half |
|
Master Bedroom: Down |
Foundation: Slab, Crawl |
|
Width: 55'-0" |
Depth: 78'-6" |
|
|
 |
With an eye to the past, this federal style cottage reflects the simplicity of the 1800's and the sophistication of the 1990's. Inside, the elegant Dining Room and Study are visible from the central Foyer. A large Great Room is open to the Kitchen and Breakfast Room and provides an inviting gathering place for family and friends. The Master Suite is located downstairs and opens to the large rear porch. Upstairs all Bedrooms include walk in closets and private dressing areas. An Office/Computer Room is designed for use by Bedrooms 2 and 3. When needed, the expandable area can be completed and used as Bedroom 4 or a Game Room.
|