 |
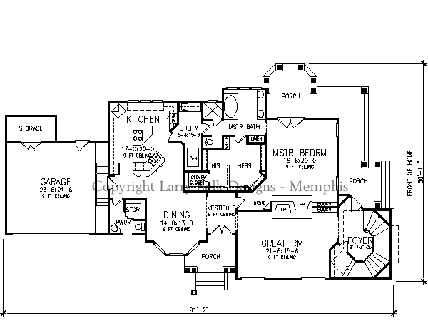
| First Floorplan (Click image for printer-friendly) |


|
Total living: 3,064 sq.ft. |
Floors: 2 |
|
1st Floor: 2,194 sq.ft. |
Garage: 627 sq.ft. |
|
2nd: 870 sq.ft. |
Bonus: 251 sq.ft. |
|
3rd: N/A |
Basement: N/A |
|
Bedrooms: 3 |
Baths: 2 Full, 1 Half |
|
Master Bedroom: Down |
Foundation: Crawl |
|
Width: 50'-11" |
Depth: 91'-2" |
|
|
 |
With equally appealing front and side entrances, a charming Victorian facade beckons one to enter this stunning home. The Foyer showcases the characteristic winding staircase and opens to the large Great Room with masonry Fireplace. An enormous Kitchen features many cabinets, a cooktop work island and a breakfast bar big enough to seat four. A lovely bay window distinguishes the nearby Dining Room. The Master Suite with masonry Fireplace is located on the first floor. The Master Bath has all the amenities with double vanity, whirlpool tub, separate shower and gigantic His and Hers walk in closets and additional cedar closet. The second floor features two bedrooms one with access to the outdoor Balcony on the side of the home. The Third Floor is completely expandable and can be used for another Bedroom and Bath or a recreation room or office.
|