Please visit our new site at www.larrybelk.com
Larry Belk Designs
Menu Items
Main Page
Who We Are
What's New
Search Plans
Popular Plans
Additional Services
Texas Collection
Custom Home Gallery
Contact Info
Copyright Notice
Web Links
Shopping
Shopping Cart
My Account
Quick Contact
1-800-909-2355


Monday, April 6, 2026
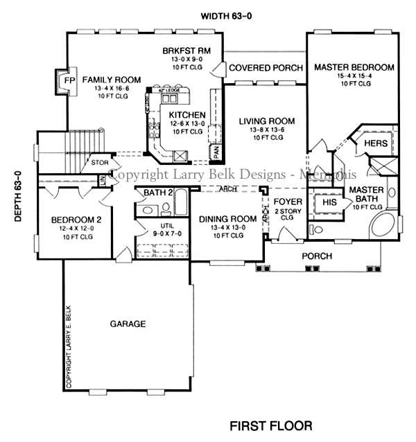
Piermont
Design #: 30-21 Price Code: F
  Page 361 of 492

Note: Sister Plan to 30-22 - Alternate Elevation


Floor Plans
First Floorplan
Second Floorplan

Views

First Floorplan
First Floorplan (Click image for printer-friendly)


Specifications
Total living: 3,041 sq.ft. Floors: 2
1st Floor: 2,121 sq.ft. Garage: 530 sq.ft.
2nd: 920 sq.ft. Bonus: 375 sq.ft.
3rd: N/A Basement: N/A
Bedrooms: 4 Baths: 3 Full
Master Bedroom: Down Foundation: Slab, Crawl
Width: 63'-0" Depth: 63'-0"

A classic Foyer opens through graceful arches to the Dining Room and Living Room in this stylish design. The Kitchen is separated from the spacious Family Room by a 42" pass through so that the cook can be part of the activity at all times. A convenient Breakfast Bar provides an area for after school snacks and meals on the go. A multifunctional Bedroom is located downstairs and can be used as a Nursery, Guest Bedroom or Home Office. The staircase is designed off the Family Room and keeps traffic to and from the upstairs Bedrooms and Game Room in the informal area of the home. Designed with privacy in mind, the Master Suite is located on the other side of the home.


  Page 361 of 492

Menu Items
- Main Page - Who We Are - What's New - Search Plans - Popular Plans - Additional Services 
- Texas Collection - Custom Home Gallery - Contact Info - Copyright Notice - Web Links 

Shopping
- Shopping Cart - My Account 

Quick Contact
1-800-909-2355

Copyright © 1999-2010 Larry Belk Designs.
Larry E. Belk Designs are distributed by Build One Design and Marketing Network, Inc.