Please visit our new site at www.larrybelk.com
Larry Belk Designs
Menu Items
Main Page
Who We Are
What's New
Search Plans
Popular Plans
Additional Services
Texas Collection
Custom Home Gallery
Contact Info
Copyright Notice
Web Links
Shopping
Shopping Cart
My Account
Quick Contact
1-800-909-2355


Tuesday, April 7, 2026
Ruskin
Design #: 31-01 Price Code: F
  Page 391 of 492


Floor Plans
First Floorplan
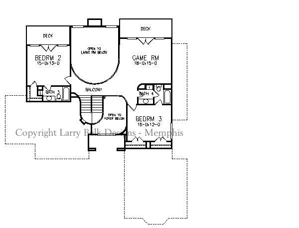
Second Floorplan

Views

Second Floorplan
Second Floorplan (Click image for printer-friendly)


Specifications
Total living: 3,169 sq.ft. Floors: 2
1st Floor: 2,109 sq.ft. Garage: 582 sq.ft.
2nd: 1,060 sq.ft. Bonus: N/A
3rd: N/A Basement: N/A
Bedrooms: 4 Baths: 4 Full
Master Bedroom: Down Foundation: Slab, Crawl
Width: 61'-11" Depth: 67'-7"

This home with an European flair blends an inviting and warm exterior with a traditional and efficient floor plan. Upon entry your eye is drawn to the curved wall rising up with the staircase. The Kitchen features a large cook top island and a corner sink with windows. A big walk-in Pantry provides additional storage. A Bar for entertaining completes the area. The two story Living Room is overlooked by a curved Balcony above. The Master Suite includes a bath with two large closets. A corner tub flanked with windows makes this a sunny and bright room. A second bedroom downstairs can be used as a Study or Office. Upstairs, there are two more Bedrooms and a Game Room with French doors opening to an upper deck.


  Page 391 of 492

Menu Items
- Main Page - Who We Are - What's New - Search Plans - Popular Plans - Additional Services 
- Texas Collection - Custom Home Gallery - Contact Info - Copyright Notice - Web Links 

Shopping
- Shopping Cart - My Account 

Quick Contact
1-800-909-2355

Copyright © 1999-2010 Larry Belk Designs.
Larry E. Belk Designs are distributed by Build One Design and Marketing Network, Inc.