|
Note: Sister Plan to Plan No. 32-01, 32-13, 35-05, 35-06 and 38-02
|
 |
| First Floorplan (Click image for printer-friendly) |


|
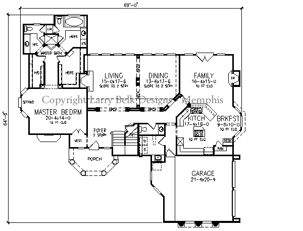
Total living: 3,298 sq.ft. |
Floors: 2 |
|
1st Floor: 2,188 sq.ft. |
Garage: 495 sq.ft. |
|
2nd: 1,110 sq.ft. |
Bonus: N/A |
|
3rd: N/A |
Basement: N/A |
|
Bedrooms: 4 |
Baths: 3 Full, 1 Half |
|
Master Bedroom: Down |
Foundation: Slab, Crawl |
|
Width: 69'-0" |
Depth: 64'-8" |
|
|
 |
This brick and stucco home with a European flair showcases an arched entry and presents a commanding presence from the curb. Inside, the Living Room, Dining Room and Family Room are all located on the back of the home and provide wide open views to the rear grounds beyond. A colonnade with connecting arches defines the space for the Living Room and Dining Room. The Master Suite features a sitting area and extravagant Master Bath with private his and her bathrooms. Upstairs, three Bedroom, two Baths and a Great Room complete the home.
|