Please visit our new site at www.larrybelk.com
Larry Belk Designs
Menu Items
Main Page
Who We Are
What's New
Search Plans
Popular Plans
Additional Services
Texas Collection
Custom Home Gallery
Contact Info
Copyright Notice
Web Links
Shopping
Shopping Cart
My Account
Quick Contact
1-800-909-2355


Monday, April 6, 2026
Prescott
Design #: 34-05 Price Code: F
  Page 365 of 492


Floor Plans
First Floorplan

Views

First Floorplan
First Floorplan (Click image for printer-friendly)


Specifications
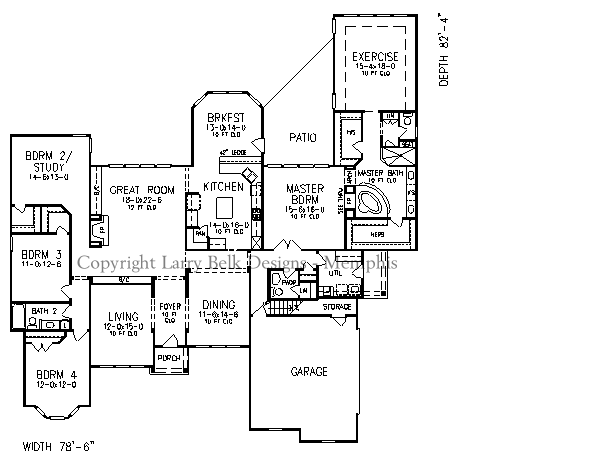
Total living: 3,426 sq.ft. Floors: 1
1st Floor: 3,426 sq.ft. Garage: 561 sq.ft.
2nd: N/A Bonus: N/A
3rd: N/A Basement: N/A
Bedrooms: 4 Baths: 2 Full, 1 Half
Master Bedroom: Down Foundation: Slab, Crawl
Width: 78'-6" Depth: 82'-4"

A traditional brick one story with a gabled front entry provides a distinctive impression from the curb. The Great Room with 12 foot ceiling features a fireplace and built in entertainment center. A sunny bay window is the highlight of the large Breakfast area. The Kitchen includes an oversize work island, walk in Pantry and plenty of counter and cabinet space. A handy side porch and entry open off the Utility Room. The Master Suite is a true owners retreat. A see through gas fireplace serves the Bedroom and Master Bath. A skylight overlooks the roomy his and her vanity and brings in the natural light. Two large walk in closets and a shower accented in glass block are also included. At the end of a short hallway is the Exercise Room perfect for the treadmill and exercise bike. Bedrooms 2, 3 and 4 are conveniently grouped on the opposite side of the home. Bedroom 4 features a lovely bay window. Bedrooms 2 and 3 include walk in closets and complete this split bedroom plan.


  Page 365 of 492

Menu Items
- Main Page - Who We Are - What's New - Search Plans - Popular Plans - Additional Services 
- Texas Collection - Custom Home Gallery - Contact Info - Copyright Notice - Web Links 

Shopping
- Shopping Cart - My Account 

Quick Contact
1-800-909-2355

Copyright © 1999-2010 Larry Belk Designs.
Larry E. Belk Designs are distributed by Build One Design and Marketing Network, Inc.