Please visit our new site at www.larrybelk.com
Larry Belk Designs
Menu Items
Main Page
Who We Are
What's New
Search Plans
Popular Plans
Additional Services
Texas Collection
Custom Home Gallery
Contact Info
Copyright Notice
Web Links
Shopping
Shopping Cart
My Account
Quick Contact
1-800-909-2355


Saturday, April 4, 2026
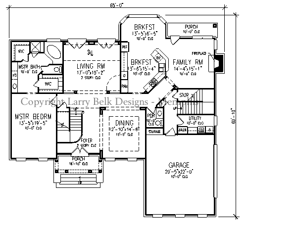
Rivercrest
Design #: 35-10 Price Code: E
  Page 383 of 492


Floor Plans
First Floorplan
Second Floorplan

Views

First Floorplan
First Floorplan (Click image for printer-friendly)


Specifications
Total living: 3,510 sq.ft. Floors: 2
1st Floor: 2,202 sq.ft. Garage: 544 sq.ft.
2nd: 1,308 sq.ft. Bonus: 342 sq.ft.
3rd: N/A Basement: N/A
Bedrooms: 4 Baths: 3 Full, 1 Half
Master Bedroom: Down Foundation: Slab, Crawl
Width: 65'-0" Depth: 60'-10"

Classic styling is the hallmark of this efficiently designed home. The two story Living Room opens to the rear yard and features a distinctive Romeo Balcony above. The Kitchen, Breakfast Room and Family Room are conveniently grouped for informal gatherings. A Master Suite with all the luxuries completes the downstairs. Upstairs are three bedrooms, two baths and a game room. Expandable area is available over the Garage.


  Page 383 of 492

Menu Items
- Main Page - Who We Are - What's New - Search Plans - Popular Plans - Additional Services 
- Texas Collection - Custom Home Gallery - Contact Info - Copyright Notice - Web Links 

Shopping
- Shopping Cart - My Account 

Quick Contact
1-800-909-2355

Copyright © 1999-2010 Larry Belk Designs.
Larry E. Belk Designs are distributed by Build One Design and Marketing Network, Inc.