Please visit our new site at www.larrybelk.com
Larry Belk Designs
Menu Items
Main Page
Who We Are
What's New
Search Plans
Popular Plans
Additional Services
Texas Collection
Custom Home Gallery
Contact Info
Copyright Notice
Web Links
Shopping
Shopping Cart
My Account
Quick Contact
1-800-909-2355


Saturday, April 4, 2026
Windermere
Design #: 42-01 Price Code: M
  Page 482 of 492

Note: Sister Plan to Plan No. 32-08 and 38-01


Floor Plans
Second Floorplan
First Floorplan

Views

First Floorplan
First Floorplan (Click image for printer-friendly)


Specifications
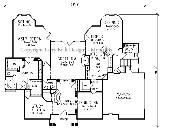
Total living: 4,264 sq.ft. Floors: 2
1st Floor: 2,634 sq.ft. Garage: 517 sq.ft.
2nd: 1,630 sq.ft. Bonus: N/A
3rd: N/A Basement: N/A
Bedrooms: 4 Baths: 3 Full, 1 Half
Master Bedroom: Down Foundation: Slab, Crawl, Basement
Width: 73'-8" Depth: 58'-6"

European traditional style is the hallmark of this best selling plan. The stucco finish provides an elegant look to a home that is as beautiful from the rear as it appears from the front curb. Available in a 3800 foot version as well, this home is a perfect blend of charm and practicality. The two story Foyer is graced by a lovely staircase and Romeo Balcony overlook from upstairs. Two columns flank the entry to the Great Room notable for its beautiful window wall facing the rear grounds. Two story double bays on the rear of the home form the Keeping Room and Breakfast Room on one side and the Master Bedroom and its sitting area on the other. A huge walk in Pantry and adjacent Butlers Pantry connect the Dining Room to the Kitchen. Rear stairs from the Kitchen join the family gathering area with the three bedrooms and game room upstairs. With a large Study downstairs and walk in attic storage available for expansion upstairs, this home provides all the amenities needed for today's busy family.


  Page 482 of 492

Menu Items
- Main Page - Who We Are - What's New - Search Plans - Popular Plans - Additional Services 
- Texas Collection - Custom Home Gallery - Contact Info - Copyright Notice - Web Links 

Shopping
- Shopping Cart - My Account 

Quick Contact
1-800-909-2355

Copyright © 1999-2010 Larry Belk Designs.
Larry E. Belk Designs are distributed by Build One Design and Marketing Network, Inc.