Please visit our new site at www.larrybelk.com
Larry Belk Designs
Menu Items
Main Page
Who We Are
What's New
Search Plans
Popular Plans
Additional Services
Texas Collection
Custom Home Gallery
Contact Info
Copyright Notice
Web Links
Shopping
Shopping Cart
My Account
Quick Contact
1-800-909-2355


Thursday, April 9, 2026
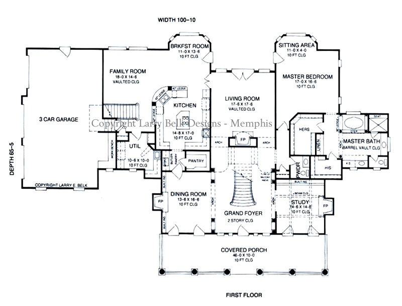
The Briars
Design #: 50-03 Price Code: O
  Page 427 of 492


Floor Plans
First Floorplan
Second Floorplan

Views

First Floorplan
First Floorplan (Click image for printer-friendly)


Specifications
Total living: 5,084 sq.ft. Floors: 2
1st Floor: 3,170 sq.ft. Garage: 902 sq.ft.
2nd: 1,914 sq.ft. Bonus: 445 sq.ft.
3rd: N/A Basement: N/A
Bedrooms: 4 Baths: 3 Full, 1 Half
Master Bedroom: Down Foundation: Crawl, Basement
Width: 100'-10" Depth: 65'-5"

Reminiscent of the grand homes of the old south, this elegantly appointed home is a beauty inside and out. A centerpiece stair rises gracefully from the two story Grand Foyer and features Romeo Balcony overlooks to the Foyer and Living Room. The Kitchen, Breakfast Room and Family Room provide open space for the gathering of family and friends. The beamed ceiling Study and the Dining Room flank the Grand Foyer and each includes a fireplace. The Master Suite features a cozy Sitting area and a Master Bath with his and hers vanities and walk in closets. Three large Bedrooms and a Game Room complete the second floor. Baths are efficiently designed with private dressing areas to give each Bedroom a private Bath. A large expandable area is available at the top of the rear stair.


  Page 427 of 492

Menu Items
- Main Page - Who We Are - What's New - Search Plans - Popular Plans - Additional Services 
- Texas Collection - Custom Home Gallery - Contact Info - Copyright Notice - Web Links 

Shopping
- Shopping Cart - My Account 

Quick Contact
1-800-909-2355

Copyright © 1999-2010 Larry Belk Designs.
Larry E. Belk Designs are distributed by Build One Design and Marketing Network, Inc.