Please visit our new site at www.larrybelk.com
Larry Belk Designs
Menu Items
Main Page
Who We Are
What's New
Search Plans
Popular Plans
Additional Services
Texas Collection
Custom Home Gallery
Contact Info
Copyright Notice
Web Links
Shopping
Shopping Cart
My Account
Quick Contact
1-800-909-2355


Sunday, April 5, 2026
Whitebrook
Design #: 52-01 Price Code: O
  Page 476 of 492


Floor Plans
First Floorplan
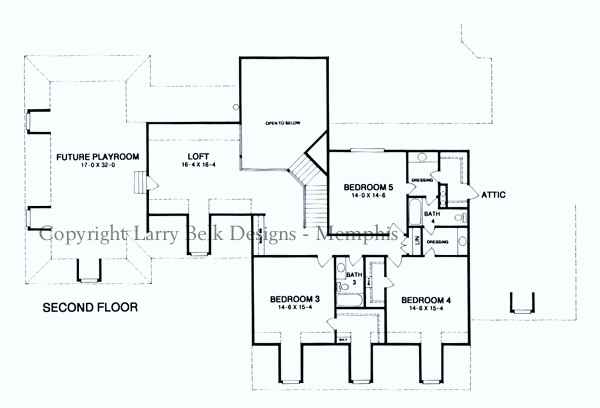
Second Floorplan

Views

Second Floorplan
Second Floorplan (Click image for printer-friendly)


Specifications
Total living: 5,296 sq.ft. Floors: 2
1st Floor: 3,545 sq.ft. Garage: 584 sq.ft.
2nd: 1,751 sq.ft. Bonus: 544 sq.ft.
3rd: N/A Basement: N/A
Bedrooms: 5 Baths: 4 Full, 1 Half
Master Bedroom: Down Foundation: Crawl
Width: 105'-0" Depth: 72'-9"

A stately home reminiscent of the South, this executive plan includes 5 bedrooms and is designed for the growing family. The Living Room features a large masonry fireplace flanked by built in cabinets and shelves. The large Kitchen has a cook top work island, walk in pantry and lots of cabinet and counter space for the cook. The Family Room and Breakfast Room are nearby and share a two way gas fireplace. A wonderful screened porch is located off the kitchen and provides a great place for outdoor meals and entertaining. The Master Suite has a corner fireplace for those cold winter nights. The Master Bath includes an Exercise Room for equipment and a bath with his and hers vanities and a corner whirlpool tub. Her walk in closet features a secondary cedar closet for storage of out of season clothes. The second floor has a large multi-purpose Loft. An enormous expandable area is located off the Loft and designated for a Playroom or Game Room.


  Page 476 of 492

Menu Items
- Main Page - Who We Are - What's New - Search Plans - Popular Plans - Additional Services 
- Texas Collection - Custom Home Gallery - Contact Info - Copyright Notice - Web Links 

Shopping
- Shopping Cart - My Account 

Quick Contact
1-800-909-2355

Copyright © 1999-2010 Larry Belk Designs.
Larry E. Belk Designs are distributed by Build One Design and Marketing Network, Inc.