Please visit our new site at www.larrybelk.com
Larry Belk Designs
Menu Items
Main Page
Who We Are
What's New
Search Plans
Popular Plans
Additional Services
Texas Collection
Custom Home Gallery
Contact Info
Copyright Notice
Web Links
Shopping
Shopping Cart
My Account
Quick Contact
1-800-909-2355


Sunday, April 5, 2026
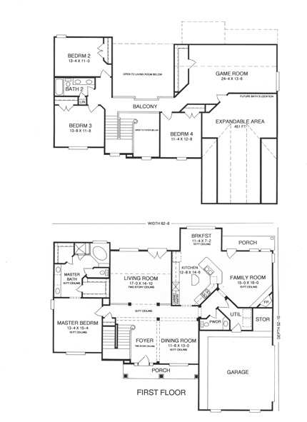
Vicksburg
Design #: 31-12 Price Code: F
  Page 449 of 492

Note: Sister Plan 34-07 - 5 bedrooms


Floor Plans
All Floorplans

Views

All Floorplans
All Floorplans (Click image for printer-friendly)


Specifications
Total living: 3,116 sq.ft. Floors: 2
1st Floor: 1,897 sq.ft. Garage: 559 sq.ft.
2nd: 1,219 sq.ft. Bonus: 451 sq.ft.
3rd: N/A Basement: N/A
Bedrooms: 4 Baths: 2 Full, 1 Half
Master Bedroom: Down Foundation: Slab, Crawl
Width: 62'-6" Depth: 52'-10"


  Page 449 of 492

Menu Items
- Main Page - Who We Are - What's New - Search Plans - Popular Plans - Additional Services 
- Texas Collection - Custom Home Gallery - Contact Info - Copyright Notice - Web Links 

Shopping
- Shopping Cart - My Account 

Quick Contact
1-800-909-2355

Copyright © 1999-2010 Larry Belk Designs.
Larry E. Belk Designs are distributed by Build One Design and Marketing Network, Inc.