Please visit our new site at www.larrybelk.com
Larry Belk Designs
Menu Items
Main Page
Who We Are
What's New
Search Plans
Popular Plans
Additional Services
Texas Collection
Custom Home Gallery
Contact Info
Copyright Notice
Web Links
Shopping
Shopping Cart
My Account
Quick Contact
1-800-909-2355


Saturday, April 4, 2026
Resolute
Design #: 33-08 Price Code: F
  Page 382 of 492


Floor Plans
First Floorplan
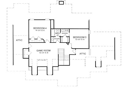
Second Floorplan

Views

Second Floorplan
Second Floorplan (Click image for printer-friendly)


Specifications
Total living: 3,318 sq.ft. Floors: 2
1st Floor: 2,346 sq.ft. Garage: 516 sq.ft.
2nd: 972 sq.ft. Bonus: N/A
3rd: N/A Basement: N/A
Bedrooms: 4 Baths: 3 Full
Master Bedroom: Down Foundation: Slab, Crawl
Width: 74'-6" Depth: 57'-6"


  Page 382 of 492

Menu Items
- Main Page - Who We Are - What's New - Search Plans - Popular Plans - Additional Services 
- Texas Collection - Custom Home Gallery - Contact Info - Copyright Notice - Web Links 

Shopping
- Shopping Cart - My Account 

Quick Contact
1-800-909-2355

Copyright © 1999-2010 Larry Belk Designs.
Larry E. Belk Designs are distributed by Build One Design and Marketing Network, Inc.