Please visit our new site at www.larrybelk.com
Larry Belk Designs
Menu Items
Main Page
Who We Are
What's New
Search Plans
Popular Plans
Additional Services
Texas Collection
Custom Home Gallery
Contact Info
Copyright Notice
Web Links
Shopping
Shopping Cart
My Account
Quick Contact
1-800-909-2355


Monday, January 12, 2026
Jameswood
Design #: 24-15 Price Code: C
  Page 232 of 492

Note: Sister Plan No. 24-17 and 24-19


Floor Plans
First Floorplan
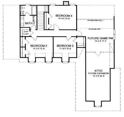
Second Floorplan

Views

Second Floorplan
Second Floorplan (Click image for printer-friendly)


Specifications
Total living: 2,431 sq.ft. Floors: 2
1st Floor: 1,638 sq.ft. Garage: 598 sq.ft.
2nd: 793 sq.ft. Bonus: N/A
3rd: N/A Basement: N/A
Bedrooms: 4 Baths: 2 Full, 1 Half
Master Bedroom: Down Foundation: Slab, Crawl
Width: 60'-10" Depth: 58'-4"

A gambrel roof replete with dormers makes this elevation a stand out from the curb. Inside, the Dining Room entrance off the Entry is flanked by double square columns to add a formal detail. The Great Room features a large Fireplace. The Kitchen and Breakfast Room are entered through an arched opening off the Great Room. The Kitchen is a cook's dream with a large walk in Pantry and central work island. A desk is provided along with an arched pass through opening to the Great Room. The opening connects the Kitchen to the Great Room and as an added bonus provides a great view of the fireplace for the busy cook. The Master Suite features a fabulous Bath with his and her vanities, a corner whirlpool tub and separate shower. Her vanity features a linen cabinet and knee space for sitting. A large walk in closet completes the arrangement. Upstairs, Bedrooms 2 and 3 receive lots of light from the front dormers. Bath 2 serves the upstairs bedrooms and is efficiently arranged with a separate double vanity. There is plenty of room for a Game Room to be added. Additional expandable area is available or can be used as walk in Attic storage.


  Page 232 of 492

Menu Items
- Main Page - Who We Are - What's New - Search Plans - Popular Plans - Additional Services 
- Texas Collection - Custom Home Gallery - Contact Info - Copyright Notice - Web Links 

Shopping
- Shopping Cart - My Account 

Quick Contact
1-800-909-2355

Copyright © 1999-2010 Larry Belk Designs.
Larry E. Belk Designs are distributed by Build One Design and Marketing Network, Inc.