|
Note: Sister Plan No. 30-01, 32-07 and 32-10
|
 |
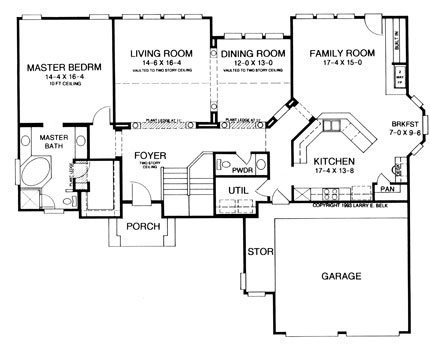
| First Floorplan (Click image for printer-friendly) |


|
Total living: 2,899 sq.ft. |
Floors: 2 |
|
1st Floor: 1,847 sq.ft. |
Garage: 520 sq.ft. |
|
2nd: 1,052 sq.ft. |
Bonus: N/A |
|
3rd: N/A |
Basement: N/A |
|
Bedrooms: 4 |
Baths: 2 Full, 1 Half |
|
Master Bedroom: Down |
Foundation: Slab, Crawl |
|
Width: 63'-4" |
Depth: 50'-10" |
|
|
 |
The elevation of this traditional brick home is highlighted by four corner windows and a massive arched porch. Upon entering, the eye is drawn to two arched openings flanked by columns and topped with display ledges. Through the two story Foyer, the Living Room and Dining Room are separated by a graceful arch between two columns. Both rooms have unobstructed views to the rear. The Kitchen, Family Room and Breakfast area are adjacent and perfect for entertaining the family evenings at home. The Family Room features a two way fireplace visible to all three areas. Built ins along one wall are a great spot for books and the television. The Master Suite with ten foot ceilings includes an oversize walk in closet. The Master Bath is notable for separate his and hers vanities, shower and a whirlpool tub located on an angle to add drama to the room. Three Bedrooms are located upstairs. Bedroom 2 and 3 both feature huge walk in closets. A full Bath and large Game Room complete this lovely "family friendly" home.
|