Please visit our new site at www.larrybelk.com
Larry Belk Designs
Menu Items
Main Page
Who We Are
What's New
Search Plans
Popular Plans
Additional Services
Texas Collection
Custom Home Gallery
Contact Info
Copyright Notice
Web Links
Shopping
Shopping Cart
My Account
Quick Contact
1-800-909-2355


Sunday, April 5, 2026
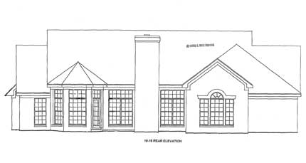
Wheatley
Design #: 19-15 Price Code: C
  Page 473 of 492

Note: Crawl foundation increases 3'4" in the garage area.


Floor Plans
First Floorplan

Views

Rear Rendering
Rear Rendering (Click image for printer-friendly)


Specifications
Total living: 1,955 sq.ft. Floors: 1
1st Floor: 1,955 sq.ft. Garage: 593 sq.ft.
2nd: N/A Bonus: N/A
3rd: N/A Basement: N/A
Bedrooms: 3 Baths: 2 Full
Master Bedroom: Down Foundation: Slab, Crawl
Width: 65'-0" Depth: 58'-8"

A roomy front porch adds outdoor living area to this compact plan. Inside, the Dining Room and Great Room are visible from the Foyer through a series of elegant archways. An angled counter opens to the Great Room and Breakfast Room so that from the Kitchen the cook can enjoy activity in other areas. The Master Suite features a luxury bath with whirlpool tub, a separate shower and an enormous walk in closet. Two additional Bedrooms and a Bath complete this efficient layout.


  Page 473 of 492

Menu Items
- Main Page - Who We Are - What's New - Search Plans - Popular Plans - Additional Services 
- Texas Collection - Custom Home Gallery - Contact Info - Copyright Notice - Web Links 

Shopping
- Shopping Cart - My Account 

Quick Contact
1-800-909-2355

Copyright © 1999-2010 Larry Belk Designs.
Larry E. Belk Designs are distributed by Build One Design and Marketing Network, Inc.