Please visit our new site at www.larrybelk.com
Larry Belk Designs
Menu Items
Main Page
Who We Are
What's New
Search Plans
Popular Plans
Additional Services
Texas Collection
Custom Home Gallery
Contact Info
Copyright Notice
Web Links
Shopping
Shopping Cart
My Account
Quick Contact
1-800-909-2355


Wednesday, April 8, 2026
Oaksedge
Design #: 36-14 Price Code: H
  Page 338 of 492

Note: Sister Plan - 34-06B and 36-15


Floor Plans
First Floorplan
Second Floorplan
Basement

Views

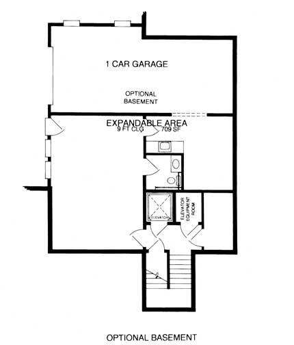
Basement
Basement (Click image for printer-friendly)


Specifications
Total living: 3,644 sq.ft. Floors: 2
1st Floor: 2,861 sq.ft. Garage: 1,221 sq.ft.
2nd: 783 sq.ft. Bonus: N/A
3rd: N/A Basement: 709 sq.ft.
Bedrooms: 4 Baths: 3 Full
Master Bedroom: Down Foundation: Crawl, Basement
Width: 67'-10" Depth: 71'-8"

Home with Elevator


  Page 338 of 492

Menu Items
- Main Page - Who We Are - What's New - Search Plans - Popular Plans - Additional Services 
- Texas Collection - Custom Home Gallery - Contact Info - Copyright Notice - Web Links 

Shopping
- Shopping Cart - My Account 

Quick Contact
1-800-909-2355

Copyright © 1999-2010 Larry Belk Designs.
Larry E. Belk Designs are distributed by Build One Design and Marketing Network, Inc.