|
|
Wednesday, April 8, 2026
|
|
 |
Tristan
|
 |
|
|
Design #: 41-11 |
|
Price Code: M
|
|
|
|
Page 439 of 492 |
 |
 |
|
|
|
Note: Sister Plan No. 40-06, 40-11, 41-02, 42-05, 43-01, 45-05 and 47-11
|
 |
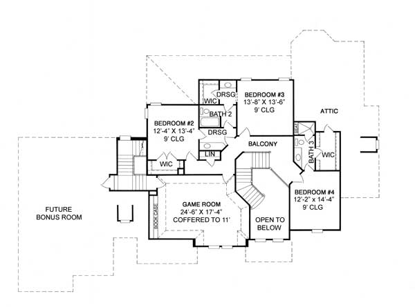
| Second Floorplan (Click image for printer-friendly) |


|
Total living: 4,100 sq.ft. |
Floors: 2 |
|
1st Floor: 2,608 sq.ft. |
Garage: 864 sq.ft. |
|
2nd: 1,492 sq.ft. |
Bonus: N/A |
|
3rd: N/A |
Basement: N/A |
|
Bedrooms: 4 |
Baths: 3 Full, 1 Half |
|
Master Bedroom: Down |
Foundation: Slab, Crawl, Basement |
|
Width: 89'-10" |
Depth: 64'-8" |
|
|
 |
Rear elevation may not reflect floor plan changes.
|
|
Page 439 of 492 |
 |
 |
|
|
|
|