Please visit our new site at www.larrybelk.com
Larry Belk Designs
Menu Items
Main Page
Who We Are
What's New
Search Plans
Popular Plans
Additional Services
Texas Collection
Custom Home Gallery
Contact Info
Copyright Notice
Web Links
Shopping
Shopping Cart
My Account
Quick Contact
1-800-909-2355


Monday, April 6, 2026
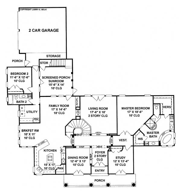
Parkwood
Design #: 40-03 Price Code: J
  Page 355 of 492

Note: Sister Plan to Plan No. 36-06


Floor Plans
First Floorplan
Second Floorplan

Views

First Floorplan
First Floorplan (Click image for printer-friendly)


Specifications
Total living: 4,008 sq.ft. Floors: 2
1st Floor: 2,807 sq.ft. Garage: 636 sq.ft.
2nd: 1,201 sq.ft. Bonus: 460 sq.ft.
3rd: N/A Basement: N/A
Bedrooms: 5 Baths: 4 Full
Master Bedroom: Down Foundation: Slab
Width: 82'-2" Depth: 88'-5"

With a style reminiscent of a Southern antebellum, this lovely home features the look of the past with the livability of today. A two story Foyer and Great Room make a dramatic presentation upon entering the home. The Master Suite is to the right with a luxurious Master Bath and convenient access to the Study nearby. The Kitchen, Breakfast Room and Family Room are open to one another and provide a wonderful area for family gatherings. The large Sun Room opens from the Family Room and provides a way to bring the outdoors in. A second bedroom for the visitor who no longer appreciates climbing the stairs is designed on the first floor. Three additional bedrooms and two baths are found upstairs. A large expandable area is available for a Game Room and easily reached from a secondary staircase in the Sun Room.


  Page 355 of 492

Menu Items
- Main Page - Who We Are - What's New - Search Plans - Popular Plans - Additional Services 
- Texas Collection - Custom Home Gallery - Contact Info - Copyright Notice - Web Links 

Shopping
- Shopping Cart - My Account 

Quick Contact
1-800-909-2355

Copyright © 1999-2010 Larry Belk Designs.
Larry E. Belk Designs are distributed by Build One Design and Marketing Network, Inc.