Please visit our new site at www.larrybelk.com
Larry Belk Designs
Menu Items
Main Page
Who We Are
What's New
Search Plans
Popular Plans
Additional Services
Texas Collection
Custom Home Gallery
Contact Info
Copyright Notice
Web Links
Shopping
Shopping Cart
My Account
Quick Contact
1-800-909-2355


Tuesday, April 7, 2026
Saganaw
Design #: 34-18CP   CALL 1-800-909-2355 FOR PRICE   Price Code: Z
  Page 393 of 492


Floor Plans
First Floorplan
Second Floorplan

Views

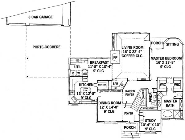
First Floorplan
First Floorplan (Click image for printer-friendly)


Specifications
Total living: 3,488 sq.ft. Floors: 2
1st Floor: 2,040 sq.ft. Garage: N/A
2nd: 1,448 sq.ft. Bonus: N/A
3rd: N/A Basement: N/A
Bedrooms: 4 Baths: 3 Full, 1 Half
Master Bedroom: Down Foundation:
Width: 87'-4" Depth: 75'-5"


  Page 393 of 492

Menu Items
- Main Page - Who We Are - What's New - Search Plans - Popular Plans - Additional Services 
- Texas Collection - Custom Home Gallery - Contact Info - Copyright Notice - Web Links 

Shopping
- Shopping Cart - My Account 

Quick Contact
1-800-909-2355

Copyright © 1999-2010 Larry Belk Designs.
Larry E. Belk Designs are distributed by Build One Design and Marketing Network, Inc.