 |
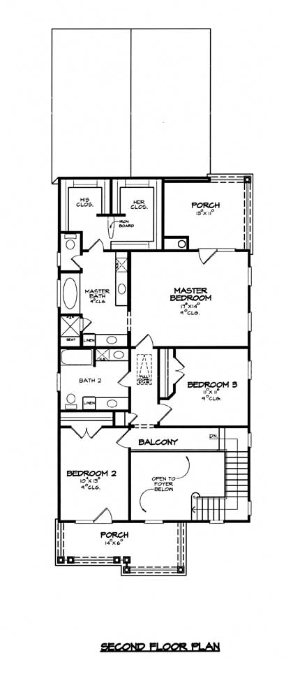
| Second Floorplan (Click image for printer-friendly) |


|
Total living: 2,447 sq.ft. |
Floors: 2 |
|
1st Floor: 1,311 sq.ft. |
Garage: 484 sq.ft. |
|
2nd: 1,136 sq.ft. |
Bonus: N/A |
|
3rd: N/A |
Basement: N/A |
|
Bedrooms: 3 |
Baths: 3 Full |
|
Master Bedroom: Up |
Foundation: Crawl |
|
Width: 29'-10" |
Depth: 79'-4" |
|
|
 |
The two front porches of this home can be accessed by French doors through the Study and the upper Bedroom. The Dining Room offers built-in cabinetry that's perfect for storing china. The Breakfast Room and Living Room, with fireplace, open onto a back porch. The second floor balcony overlooks the generous Foyer. The Master Suite has his and hers closets, a shower, two vanities and an adjacent porch, proving that luxury does not have to be sacrificed in a narrow lot home.
|