Please visit our new site at www.larrybelk.com
Larry Belk Designs
Menu Items
Main Page
Who We Are
What's New
Search Plans
Popular Plans
Additional Services
Texas Collection
Custom Home Gallery
Contact Info
Copyright Notice
Web Links
Shopping
Shopping Cart
My Account
Quick Contact
1-800-909-2355


Sunday, April 5, 2026
Villa Dorado
Design #: 58-07 Price Code: O
  Page 453 of 492

Note: Sister Plan No. 10-5801 can be viewed in the Custom Home Gallery


Floor Plans
First Floorplan
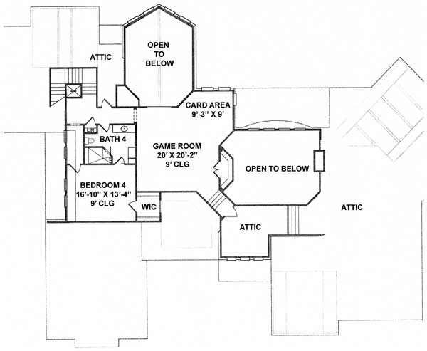
Second Floorplan

Views

Second Floorplan
Second Floorplan (Click image for printer-friendly)


Specifications
Total living: 5,852 sq.ft. Floors: 2
1st Floor: 4,735 sq.ft. Garage: 1,521 sq.ft.
2nd: 1,117 sq.ft. Bonus: N/A
3rd: N/A Basement: N/A
Bedrooms: 5 Baths: 5 Full, 2 Half
Master Bedroom: Down Foundation: Slab, Basement
Width: 136'-5" Depth: 81'-1"


  Page 453 of 492

Menu Items
- Main Page - Who We Are - What's New - Search Plans - Popular Plans - Additional Services 
- Texas Collection - Custom Home Gallery - Contact Info - Copyright Notice - Web Links 

Shopping
- Shopping Cart - My Account 

Quick Contact
1-800-909-2355

Copyright © 1999-2010 Larry Belk Designs.
Larry E. Belk Designs are distributed by Build One Design and Marketing Network, Inc.