Please visit our new site at www.larrybelk.com
Larry Belk Designs
Menu Items
Main Page
Who We Are
What's New
Search Plans
Popular Plans
Additional Services
Texas Collection
Custom Home Gallery
Contact Info
Copyright Notice
Web Links
Shopping
Shopping Cart
My Account
Quick Contact
1-800-909-2355


Sunday, April 5, 2026
Vescova
Design #: 57-05 Price Code: O
  Page 448 of 492

Note: Sister Plan No. 45-05 and 47-13


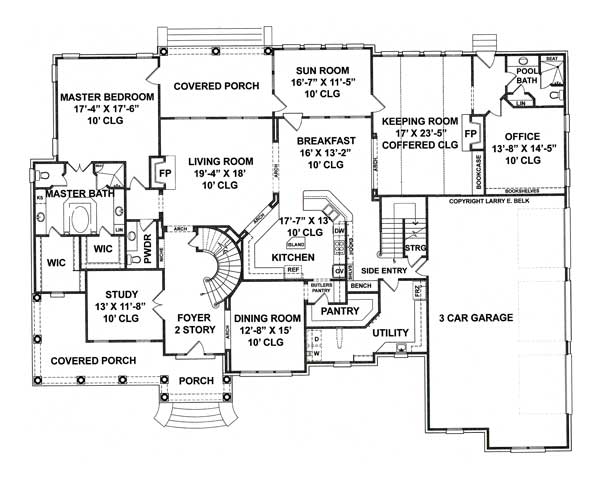
Floor Plans
First Floorplan
Second Floorplan

Views

First Floorplan
First Floorplan (Click image for printer-friendly)


Specifications
Total living: 5,720 sq.ft. Floors: 2
1st Floor: 3,576 sq.ft. Garage: 1,053 sq.ft.
2nd: 2,144 sq.ft. Bonus: N/A
3rd: N/A Basement: N/A
Bedrooms: 5 Baths: 5 Full, 1 Half
Master Bedroom: Down Foundation: Slab
Width: 92'-10" Depth: 69'-2"


  Page 448 of 492

Menu Items
- Main Page - Who We Are - What's New - Search Plans - Popular Plans - Additional Services 
- Texas Collection - Custom Home Gallery - Contact Info - Copyright Notice - Web Links 

Shopping
- Shopping Cart - My Account 

Quick Contact
1-800-909-2355

Copyright © 1999-2010 Larry Belk Designs.
Larry E. Belk Designs are distributed by Build One Design and Marketing Network, Inc.