Please visit our new site at www.larrybelk.com
Larry Belk Designs
Menu Items
Main Page
Who We Are
What's New
Search Plans
Popular Plans
Additional Services
Texas Collection
Custom Home Gallery
Contact Info
Copyright Notice
Web Links
Shopping
Shopping Cart
My Account
Quick Contact
1-800-909-2355


Tuesday, April 7, 2026
Westhampton
Design #: 39-13 Price Code: M
  Page 471 of 492

Note: Sister Plan No. 35-14 and 37-12


Floor Plans
First Floorplan
Second Floorplan

Views

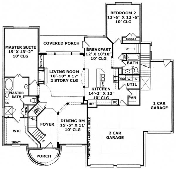
First Floorplan
First Floorplan (Click image for printer-friendly)


Specifications
Total living: 3,973 sq.ft. Floors: 2
1st Floor: 2,202 sq.ft. Garage: 908 sq.ft.
2nd: 1,771 sq.ft. Bonus: N/A
3rd: N/A Basement: N/A
Bedrooms: 6 Baths: 5 Full
Master Bedroom: Down Foundation: Slab
Width: 67'-8" Depth: 64'-8"

The stone turret with arch top windows exudes character and gives credence to the adage that your home is your castle. Six bedrooms make this spectacular European style home an excellent design for a large family. The Master Suite is located downstairs to give Mom and Dad privacy and features a spa-like master bath and an enormous walk in closet featuring natural light from the window and a built in seat beneath. A second bedroom for the in-laws is split away from the Master Suite for privacy. The Living Room, Dining Room, Kitchen and Breakfast area are wide open and make this plan great for entertaining. Upstairs, four additional bedrooms-each with a walk in closet-and a large Game/Media Room complete the plan.


  Page 471 of 492

Menu Items
- Main Page - Who We Are - What's New - Search Plans - Popular Plans - Additional Services 
- Texas Collection - Custom Home Gallery - Contact Info - Copyright Notice - Web Links 

Shopping
- Shopping Cart - My Account 

Quick Contact
1-800-909-2355

Copyright © 1999-2010 Larry Belk Designs.
Larry E. Belk Designs are distributed by Build One Design and Marketing Network, Inc.