Please visit our new site at www.larrybelk.com
Larry Belk Designs
Menu Items
Main Page
Who We Are
What's New
Search Plans
Popular Plans
Additional Services
Texas Collection
Custom Home Gallery
Contact Info
Copyright Notice
Web Links
Shopping
Shopping Cart
My Account
Quick Contact
1-800-909-2355


Tuesday, April 7, 2026
Waterford
Design #: 39-12 Price Code: K
  Page 465 of 492

Note: Sister Plan No. 39-14, 40-14, 40-15CP and 42-09


Floor Plans
First Floorplan
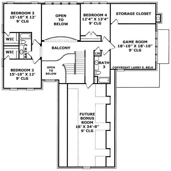
Second Floorplan

Views

Second Floorplan
Second Floorplan (Click image for printer-friendly)


Specifications
Total living: 3,940 sq.ft. Floors: 2
1st Floor: 2,241 sq.ft. Garage: N/A
2nd: 1,699 sq.ft. Bonus: 840 sq.ft.
3rd: N/A Basement: N/A
Bedrooms: 4 Baths: 3 Full, 1 Half
Master Bedroom: Down Foundation: Slab
Width: 69'-6" Depth: 70'-0"

Decorative cross beam detailing gives the front elevation of this home a French country flair. The floor plan design allows views out to the rear yard from all the major living areas and coupled with the tasteful elevation is cost efficient to build. The Kitchen, Keeping Room and Breakfast Room layout is open and spacious while the Dining and Living Room areas are available for more formal family occasions. Upstairs, three additional bedrooms and a Game Room and Storage Closet provide plenty of family space. A multi-purpose expandable area is available over the three car garage.


  Page 465 of 492

Menu Items
- Main Page - Who We Are - What's New - Search Plans - Popular Plans - Additional Services 
- Texas Collection - Custom Home Gallery - Contact Info - Copyright Notice - Web Links 

Shopping
- Shopping Cart - My Account 

Quick Contact
1-800-909-2355

Copyright © 1999-2010 Larry Belk Designs.
Larry E. Belk Designs are distributed by Build One Design and Marketing Network, Inc.