Please visit our new site at www.larrybelk.com
Larry Belk Designs
Menu Items
Main Page
Who We Are
What's New
Search Plans
Popular Plans
Additional Services
Texas Collection
Custom Home Gallery
Contact Info
Copyright Notice
Web Links
Shopping
Shopping Cart
My Account
Quick Contact
1-800-909-2355


Saturday, April 4, 2026
Winston
Design #: 37-12 Price Code: M
  Page 483 of 492

Note: Sister Plan No. 35-14 and 39-13


Floor Plans
First Floorplan
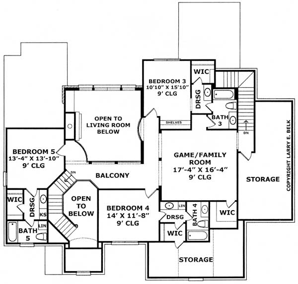
Second Floorplan

Views

Second Floorplan
Second Floorplan (Click image for printer-friendly)


Specifications
Total living: 3,706 sq.ft. Floors: 2
1st Floor: 2,202 sq.ft. Garage: 908 sq.ft.
2nd: 1,504 sq.ft. Bonus: N/A
3rd: N/A Basement: N/A
Bedrooms: 5 Baths: 5 Full
Master Bedroom: Down Foundation: Slab
Width: 67'-8" Depth: 64'-8"

A stone niche with a pitched roof combined with a two story stone entrance give this elevation a Tuscan feel. Inside, timber columns used in the Dining, Kitchen and upstairs colonnade continue the European theme. The Kitchen is open to the Living Room and includes double Kitchen islands making this space a dream for entertaining. The Master and Bedroom 2 are located downstairs and split to provide privacy. Three additional Bedrooms are upstairs for a total of 5 bedrooms in this family oriented floor plan. The upstairs Game/Family Room is great for Media viewing. Two large attic storage areas are easily accessible.


  Page 483 of 492

Menu Items
- Main Page - Who We Are - What's New - Search Plans - Popular Plans - Additional Services 
- Texas Collection - Custom Home Gallery - Contact Info - Copyright Notice - Web Links 

Shopping
- Shopping Cart - My Account 

Quick Contact
1-800-909-2355

Copyright © 1999-2010 Larry Belk Designs.
Larry E. Belk Designs are distributed by Build One Design and Marketing Network, Inc.