Please visit our new site at www.larrybelk.com
Larry Belk Designs
Menu Items
Main Page
Who We Are
What's New
Search Plans
Popular Plans
Additional Services
Texas Collection
Custom Home Gallery
Contact Info
Copyright Notice
Web Links
Shopping
Shopping Cart
My Account
Quick Contact
1-800-909-2355


Saturday, April 4, 2026
Vinyard
Design #: 40-14 Price Code: M
  Page 458 of 492

Note: Sister Plan No. 39-12, 39-14, 40-15CP and 42-09


Floor Plans
First Floorplan
Second Floorplan

Views

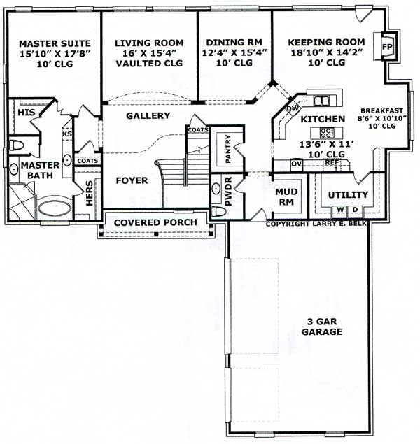
First Floorplan
First Floorplan (Click image for printer-friendly)


Specifications
Total living: 4,036 sq.ft. Floors: 2
1st Floor: 2,354 sq.ft. Garage: 864 sq.ft.
2nd: 1,682 sq.ft. Bonus: 756 sq.ft.
3rd: N/A Basement: N/A
Bedrooms: 4 Baths: 3 Full, 1 Half
Master Bedroom: Down Foundation: Slab
Width: 69'-6" Depth: 73'-0"

This dynamic floor plan design allows views out to the rear yard from all the major living areas and coupled with the understated French country elevation is cost efficient to build. The Kitchen, Keeping Room and Breakfast Room layout is open and spacious while the Dining and Living Room areas are available for more formal family occasions. Entered from the Garage, the Mud Room provides plenty of room to drop off back packs and coats. The Utility Room is upsized to meet the house keeping demands of a big family. Three additional bedrooms and a Game Room provide plenty of family living space. A multi-purpose expandable area is available over the three car garage.


  Page 458 of 492

Menu Items
- Main Page - Who We Are - What's New - Search Plans - Popular Plans - Additional Services 
- Texas Collection - Custom Home Gallery - Contact Info - Copyright Notice - Web Links 

Shopping
- Shopping Cart - My Account 

Quick Contact
1-800-909-2355

Copyright © 1999-2010 Larry Belk Designs.
Larry E. Belk Designs are distributed by Build One Design and Marketing Network, Inc.