Please visit our new site at www.larrybelk.com
Larry Belk Designs
Menu Items
Main Page
Who We Are
What's New
Search Plans
Popular Plans
Additional Services
Texas Collection
Custom Home Gallery
Contact Info
Copyright Notice
Web Links
Shopping
Shopping Cart
My Account
Quick Contact
1-800-909-2355


Saturday, April 4, 2026
Yorkshire
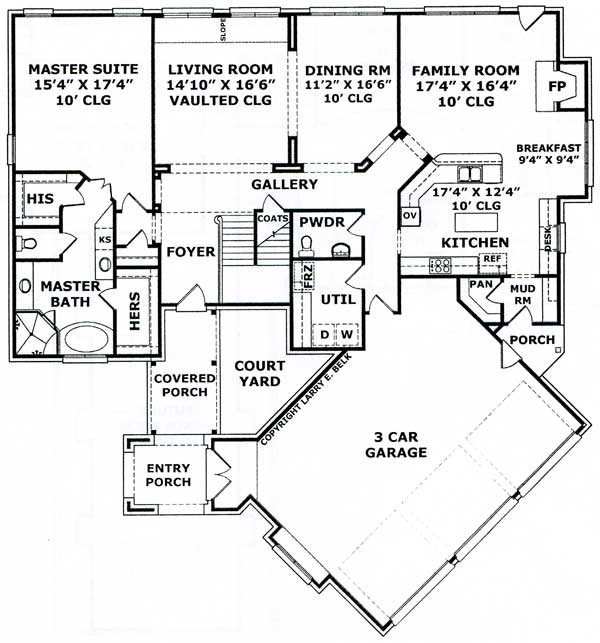
Design #: 39-14 Price Code: M
  Page 491 of 492

Note: Sister Plan No. 39-12, 40-14, 40-15CP and 42-09


Floor Plans
First Floorplan
Second Floorplan

Views

First Floorplan
First Floorplan (Click image for printer-friendly)


Specifications
Total living: 3,909 sq.ft. Floors: 2
1st Floor: 2,261 sq.ft. Garage: 874 sq.ft.
2nd: 1,648 sq.ft. Bonus: 559 sq.ft.
3rd: N/A Basement: N/A
Bedrooms: 4 Baths: 3 Full, 1 Half
Master Bedroom: Down Foundation: Slab
Width: 65'-0" Depth: 69'-8"

This dynamic floor plan design allows views out to the rear yard from all the major living areas and coupled with the understated French country elevation is cost efficient to build. An angled three car garage keeps the façade good looking from all directions and makes the design a perfect choice for a corner lot. The Kitchen, Keeping Room and Breakfast Room layout is open and spacious while the Dining and Living Room areas are available for more formal family occasions. A Mud Room off the side porch provides plenty of room to drop off back packs and shoes. Upstairs, three additional bedrooms and a Game Room-all with large walk in closets-provide plenty of family space. A multi-purpose expandable area is available over the three car garage.


  Page 491 of 492

Menu Items
- Main Page - Who We Are - What's New - Search Plans - Popular Plans - Additional Services 
- Texas Collection - Custom Home Gallery - Contact Info - Copyright Notice - Web Links 

Shopping
- Shopping Cart - My Account 

Quick Contact
1-800-909-2355

Copyright © 1999-2010 Larry Belk Designs.
Larry E. Belk Designs are distributed by Build One Design and Marketing Network, Inc.