Please visit our new site at www.larrybelk.com
Larry Belk Designs
Menu Items
Main Page
Who We Are
What's New
Search Plans
Popular Plans
Additional Services
Texas Collection
Custom Home Gallery
Contact Info
Copyright Notice
Web Links
Shopping
Shopping Cart
My Account
Quick Contact
1-800-909-2355


Sunday, April 5, 2026
Victoria
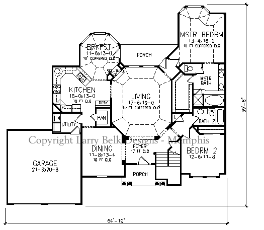
Design #: 24-02 Price Code: D
  Page 450 of 492


Floor Plans
First Floorplan
Second Floorplan

Views

First Floorplan
First Floorplan (Click image for printer-friendly)


Specifications
Total living: 2,438 sq.ft. Floors: 2
1st Floor: 1,880 sq.ft. Garage: 472 sq.ft.
2nd: 558 sq.ft. Bonus: 287 sq.ft.
3rd: N/A Basement: N/A
Bedrooms: 4 Baths: 3 Full
Master Bedroom: Down Foundation: Slab, Crawl
Width: 64'-10" Depth: 59'-8"

This charming cottage style home featuring a swoop roof is a real charmer. Inside, a two story Foyer opens through a large arch to the Living Room with a 10 foot coffered ceiling. Another arch defines the Dining Room. A see through fireplace is located between the Living Room and Breakfast Area featuring a bay window and coffered ceiling. A large Kitchen, Utility Room and walk in Pantry complete the area. The Master Bedroom with ten foot ceiling, sitting area and luxury Master Bath is located on the opposite side of the home. Bedroom 2 and Bath 2 are located nearby. Bedrooms 3 and 4 are located upstairs along with an expandable Game Room.


  Page 450 of 492

Menu Items
- Main Page - Who We Are - What's New - Search Plans - Popular Plans - Additional Services 
- Texas Collection - Custom Home Gallery - Contact Info - Copyright Notice - Web Links 

Shopping
- Shopping Cart - My Account 

Quick Contact
1-800-909-2355

Copyright © 1999-2010 Larry Belk Designs.
Larry E. Belk Designs are distributed by Build One Design and Marketing Network, Inc.