Please visit our new site at www.larrybelk.com
Larry Belk Designs
Menu Items
Main Page
Who We Are
What's New
Search Plans
Popular Plans
Additional Services
Texas Collection
Custom Home Gallery
Contact Info
Copyright Notice
Web Links
Shopping
Shopping Cart
My Account
Quick Contact
1-800-909-2355


Tuesday, April 7, 2026
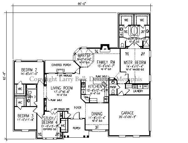
Wellington
Design #: 25-07A Price Code: C
  Page 469 of 492

Note: Sister Plan No. 25-7B, 25-7C and 25-7D - Alternate Elevations


Floor Plans
First Floorplan

Views

First Floorplan
First Floorplan (Click image for printer-friendly)


Specifications
Total living: 2,545 sq.ft. Floors: 1
1st Floor: 2,545 sq.ft. Garage: 436 sq.ft.
2nd: N/A Bonus: N/A
3rd: N/A Basement: N/A
Bedrooms: 4 Baths: 2 Full, 1 Half
Master Bedroom: Down Foundation: Slab, Crawl
Width: 69'-0" Depth: 63'-6"

An entrance flanked by columns and imposing gables accented with dentil mold give character to this compact southern traditional. Inside an angled Foyer draws the eye to an arched passage in the Living Room. Bookcases topped by ledges perfect for displaying collectibles and plants are on either side of the archway. Through the passage are three of the Bedrooms in this split bedroom plan. The front Bedroom can be used as a Study and as an option can be entered through double French doors off the Living Room. The home includes a large Kitchen/Family Room combination with an octagonal shaped Breakfast area. The Master Bedroom is entered through angled double doors and features a cathedral ceiling. Attention centers immediately on the arched entry to the spacious Master Bath complete with his and hers vanities and walk in closets. With the use of windows in the Living Room and Breakfast area all major living areas in the home including the Kitchen and Family Room have clear views to the outside. Each of these areas also include 10 foot ceilings to make the home feel even more open and spacious.


  Page 469 of 492

Menu Items
- Main Page - Who We Are - What's New - Search Plans - Popular Plans - Additional Services 
- Texas Collection - Custom Home Gallery - Contact Info - Copyright Notice - Web Links 

Shopping
- Shopping Cart - My Account 

Quick Contact
1-800-909-2355

Copyright © 1999-2010 Larry Belk Designs.
Larry E. Belk Designs are distributed by Build One Design and Marketing Network, Inc.