Please visit our new site at www.larrybelk.com
Larry Belk Designs
Menu Items
Main Page
Who We Are
What's New
Search Plans
Popular Plans
Additional Services
Texas Collection
Custom Home Gallery
Contact Info
Copyright Notice
Web Links
Shopping
Shopping Cart
My Account
Quick Contact
1-800-909-2355


Wednesday, April 8, 2026
Northdale
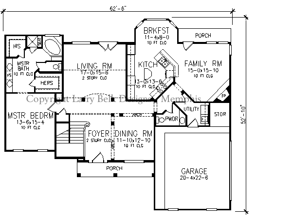
Design #: 26-06 Price Code: D
  Page 330 of 492


Floor Plans
First Floorplan
Second Floorplan

Views

First Floorplan
First Floorplan (Click image for printer-friendly)


Specifications
Total living: 2,685 sq.ft. Floors: 2
1st Floor: 1,844 sq.ft. Garage: 522 sq.ft.
2nd: 841 sq.ft. Bonus: 455 sq.ft.
3rd: N/A Basement: N/A
Bedrooms: 4 Baths: 2 Full, 1 Half
Master Bedroom: Down Foundation: Slab, Crawl
Width: 62'-6" Depth: 52'-10"

Two shed dormers and a front porch perfect for "sittin" evoke the charm of the country farm house in a home designed for the constraints of a suburban lot. Inside, impact is created at the front door with a Dining Room defined by columns and connecting arched openings. The conveniently designed Kitchen features a work island and eating bar. The Family Room with corner fireplace has access to a rear covered porch. Three Bedrooms and a Bath are located on the second floor. A large area perfect for a Game Room or Craft Room is located over the Garage and makes this plan a great pick for the growing family.


  Page 330 of 492

Menu Items
- Main Page - Who We Are - What's New - Search Plans - Popular Plans - Additional Services 
- Texas Collection - Custom Home Gallery - Contact Info - Copyright Notice - Web Links 

Shopping
- Shopping Cart - My Account 

Quick Contact
1-800-909-2355

Copyright © 1999-2010 Larry Belk Designs.
Larry E. Belk Designs are distributed by Build One Design and Marketing Network, Inc.