 |
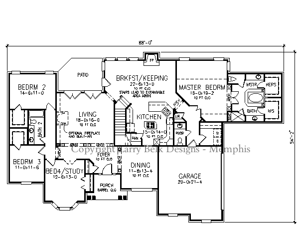
| First Floorplan (Click image for printer-friendly) |


|
Total living: 2,733 sq.ft. |
Floors: 1 |
|
1st Floor: 2,733 sq.ft. |
Garage: 487 sq.ft. |
|
2nd: N/A |
Bonus: N/A |
|
3rd: N/A |
Basement: N/A |
|
Bedrooms: 4 |
Baths: 2 Full, 1 Half |
|
Master Bedroom: Down |
Foundation: Slab, Crawl |
|
Width: 88'-0" |
Depth: 54'-2" |
|
|
 |
The use of wood shingles and an accent of metal roof give this one story home an eastern seaboard feel. With 10 foot ceilings in all major living areas, the home has a spacious, open look. Inside, the Foyer opens to a central Gallery formed by a series of columns with graceful connecting arches. Double French Doors open off the Living Room to the rear grounds. The Kitchen is open to a large Breakfast and Keeping Room area. Perfect for informal entertaining, this area has plenty of room for a Dining Set and a furniture grouping. The Kitchen features a cook top island, walk in Pantry and lots of counter and cabinet space. A stair is included for access to the attic area above. With unfinished area over the Breakfast/Keeping Room, Kitchen and Garage, this plan is tailor made for future expansion. The Master Bedroom includes a gorgeous Master Bath entered through double French doors flanked by columns. The whirlpool tub with half column accents on either side serves as the focal point of the room. A separate shower, his and hers vanities and walk in closets make this Bath a dream. Bedrooms 2, 3 and 4 are located on the opposite side of the home. Bedroom 4 features a lovely bay window and could be used as a Study. Bedrooms 2 and 3 are notable for their roomy walk in closets.
|